Elegante casa in stile modernista, completamente ristrutturata, situata nel cuore del centro storico di Sant Feliu de Guíxols. Distribuita su più livelli, conserva le caratteristiche originali, compresi gli spazi interni come il patio privato e le terrazze esterne.
Caratteristiche principali dell' casa / villa
- Vista sul mare
- Terrazza
- Pavimento in mosaico
- Luce naturale
- Edificio modernista
- Zona Relax
- Viste della città
- Riscaldamento
- Ripostiglio
- Licenza turistica
- Finestre con doppio vetro
- Esterno
- Cucina attrezzata
- Caminetto
- Biblioteca
- Balcone
- Armadi a muro
- Planimetrie 156m²
- Constructed area 156m²
Cosa devi sapere di questa casa / villa
Situata nel cuore del prestigioso quartiere storico di Sant Feliu de Guíxols, questa magnifica dimora modernista rappresenta un'eccezionale combinazione di carattere architettonico originale e meticoloso restauro. Una proprietà unica nella regione del Baix Empordà, progettata per chi apprezza l'autenticità, gli spazi ampi e una posizione privilegiata sulla Costa Brava.
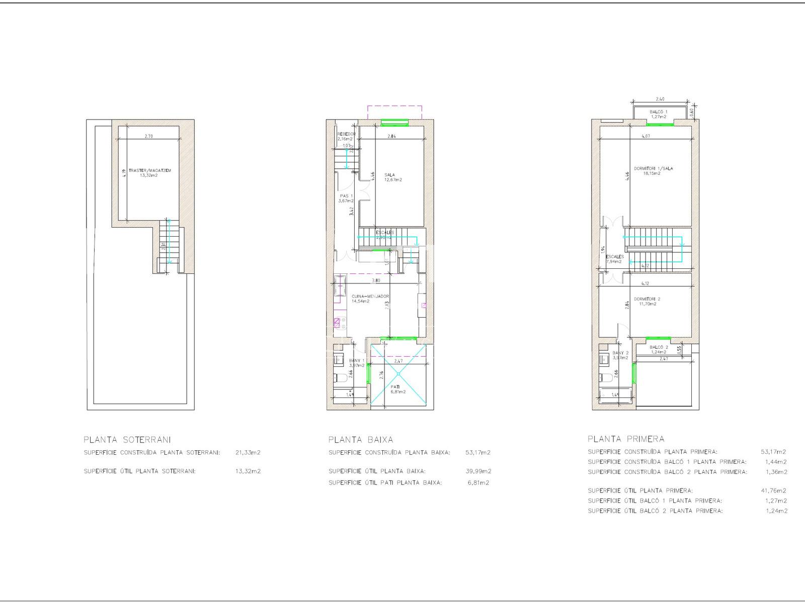
La casa è distribuita su cinque livelli collegati da un'elegante scala centrale. Al piano terra, un accogliente ingresso conduce a uno studio/biblioteca, facilmente trasformabile in una camera da letto matrimoniale. Su questo piano si trovano anche una cucina completamente ristrutturata, che conserva il carattere della casa originale, un bagno completo con vasca e l'accesso a un grazioso patio privato di circa 14 m², che fornisce luce naturale e ventilazione. Da qui, si accede anche a un pratico ripostiglio/cantina/dispensa situato al piano inferiore.
Al primo piano, spicca un ampio soggiorno-pranzo, caratterizzato da ampie finestre, soffitti alti e affreschi originali che rafforzano il carattere signorile della casa. A questo livello si trova anche una spaziosa camera matrimoniale con bagno privato e accesso a un balcone con vista sul cortile.
Il secondo piano ospita diverse stanze versatili: una camera singola, due camere matrimoniali, una delle quali con balcone che si affaccia sulla strada, e un bagno completo con doccia, perfettamente allineato con i bagni dei piani inferiori, oltre all'accesso diretto al patio.
Il terzo piano è dedicato agli spazi esterni e funzionali, con due magnifiche terrazze di circa 20 m² e 26 m², una lavanderia separata e un locale multiuso ideale come ufficio o ripostiglio, che potrebbe anche essere convertito in una camera da letto matrimoniale. Da una di queste terrazze si accede al gioiello della proprietà: un'ampia terrazza superiore che occupa quasi l'intero piano, offrendo una vista panoramica a 360° sul mare e sulle montagne circostanti. Questo è uno spazio ideale per creare una zona relax o una terrazza privata sul tetto.
Acquisizione esclusiva
Proprietà disponibile solo con Lucas Fox
Extras
Casa modernista restaurata
- licenza turistica valida
Posizione privilegiata nel centro storico
Soffitti alti con affreschi originali
Pavimenti idraulici originali conservati
Travi a vista su più piani
Patio privato
Molteplici terrazze e tetto con vista aperta
Possibilità di avere fino a 6 camere da letto
Spazi polivalenti (ufficio, biblioteca, lavanderia)
Casa con grande carattere e personalità
Distribuzione di questa casa / villa
🏠 Alloggi
Superficie totale costruita: 156 m²
Cinque livelli
Circa 52 m² costruiti per piano
🌿 All'aperto
Patio: 14 m²
Terrazze del terzo piano:
Terrazza 1: 20 m²
Terrazza 2: 26 m²
Terrazza panoramica: ampia superficie con vista a 360°
📦 Altri spazi
Ripostiglio al livello -1
Lavanderia separata
Sant Feliu de Guíxols, Costa-Brava: Posizione e localizzazione di questo alloggio
Questa proprietà si trova nel cuore di Sant Feliu de Guíxols, una delle città più emblematiche della Costa Brava. La casa si trova a soli 200 metri dalla spiaggia, in una zona pedonale con negozi, ristoranti, bar e tutti i servizi necessari per la vita quotidiana. La zona offre un'atmosfera tranquilla e accogliente, ideale per vivere tutto l'anno o per godersi soggiorni di vacanza. Inoltre, è ben collegata con i mezzi pubblici ad altre città costiere e alla città di Girona, a 30 minuti di auto, o alla città di Barcellona, a 60 minuti di auto.
Attestato di certificazione energetica dell’immobile
Energy consumption E : 174kWh/m²/year
Emissions E : 36kg CO₂/m²/year
- 2
- 3
- 4
- 5
- 6
- 7
- 8
- 9
- 10
- 11
- 12
- 13
- 14
- 15
- 16
- 17
- 18
- 19
- 20
- 21
- 22
- 23
- 24
- 25
- 26
- 27
- 28
- 29
- 30
- 31
- 32
- 33
- 34
- 35
- 36
- 37
- 38
- 39
- 40
- 41
Immobili simili in vendita in Sant Feliu de Guíxols
Non e' esattamente quello che sta cercando ?






























































































































































































































































